P&N Architectes

Réfection de la crèche Nollet - 75017 Paris

Le projet consiste au réaménagement des locaux du 2ème étage comprenant les unités d’accueil des moyens et des grands et le bureau des responsables.

Les locaux présentaient les problèmes suivants:

- Ils ne répondaient plus aux normes  d’accessibilité et de sécurité incendie;

- Le bureau de direction était exigu et isolé;

- Les surfaces des unités d’accueil n’étaient pas optimisées rendant ces espaces peu fonctionnels et peu accueillants.

La redistribution des trois unités d’accueil autour des éléments verticaux desservant l’étage (deux escaliers et un monte-plat) a permis de limiter et de redimensionner les circulations et, d’optimiser les surfaces.

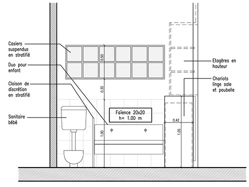
Un espace d’accueil est ainsi créé à la sortie de l’escalier. Il dessert directement le bureau de la direction et les vestiaires des différentes unités. Les nouveaux postes de changes sont compacts et fonctionnels. L’implantation de chaque espace est articulée afin de dégager les perspectives pour privilégier les vues et ainsi, améliorer la surveillance et augmenter l’entrée de lumière naturelle dans les pièces

 

 

 

 

 

Maître d'Ouvrage :

SLA17 - Section Locale d'Architecture

du 17ème arrondissement

16, rue des Batignolles 75017 PARIS

Equipe :

PARICA BET TCE

Jimmy Pereira / Sophie Nussbaum Architectes

Site :

Paris 17

Procédure :

Consultation sur dossier Mission d'études

Surface :

350 m²

Coût :

440 K€ HT

Réalisation :

Mars 2014